+7 (812) 612-04-44
Санкт-Петербург
Товар добавлен в корзину
Продолжить покупки

Проектирование систем ОВиК в Санкт-Петербурге

Бесплатно консультация специалиста
От 5 000 P стоимость проекта
От 3 дней срок выполнения

В основе любой системы лежит проект, который учитывает характеристики и назначение помещения, расчетную мощность, питание и модели оборудования, требуемого для обеспечения потребностей помещения. Для простых (типовых) задач, специалистам достаточно минимальных данных, чтобы грамотно подобрать оборудование и установить его. Когда же речь идет о системе, либо нестандартных требованиях, либо крупном объекте, а также при необходимости согласования устанавливаемой системы в государственных контроллирующих органах, обязательно наличие проекта.

Проектирование вентиляции, кондиционирования, увлажнения или осушения воздуха – первый и крайне важный этап создания микроклимата в Вашем доме или офисе, на производственном предприятии. Специалисты компании Технологии Климата обладают всеми необходимыми знаниями и опытом в разработке проектов любого уровня сложности и всегда готовы быстро и качественно осуществить проектирование любых климатических систем в Москве.

Высококвалифицированные
проектировщики
Подробное техническое задание,
после составления проекта
Соответствие всем нормам
и стандартам проектирования
Оперативное решение
задач любой сложности
Рассчитать стоимость проекта
“Специалист бесплатно, проконсультирует по проектированию, предложит лучшие решения и рассчитает стоимость реализации”
Дмитрий Рахманов
Дмитрий Рахманов
Руководитель отдела
монтажа и сервисного обслуживания
Проект гарантирует

Максимально комфортные условия

Наиболее комфортные параметры воздуха внутри помещения рассчитываются для каждого типа помещений и закладываются в проект

Бесперебойную работу

Надежность и долговечность работы оборудования напрямую связана с соответсвием проектных характеристик техническим возможностям оборудования.

Достижение требуемых параметров

Количество и мощность необходимого оборудования, места подключения проектируются с учетом требуемых параметров воздуха в помещениях, его температуры и влажности.

Иконка проектной деятельности
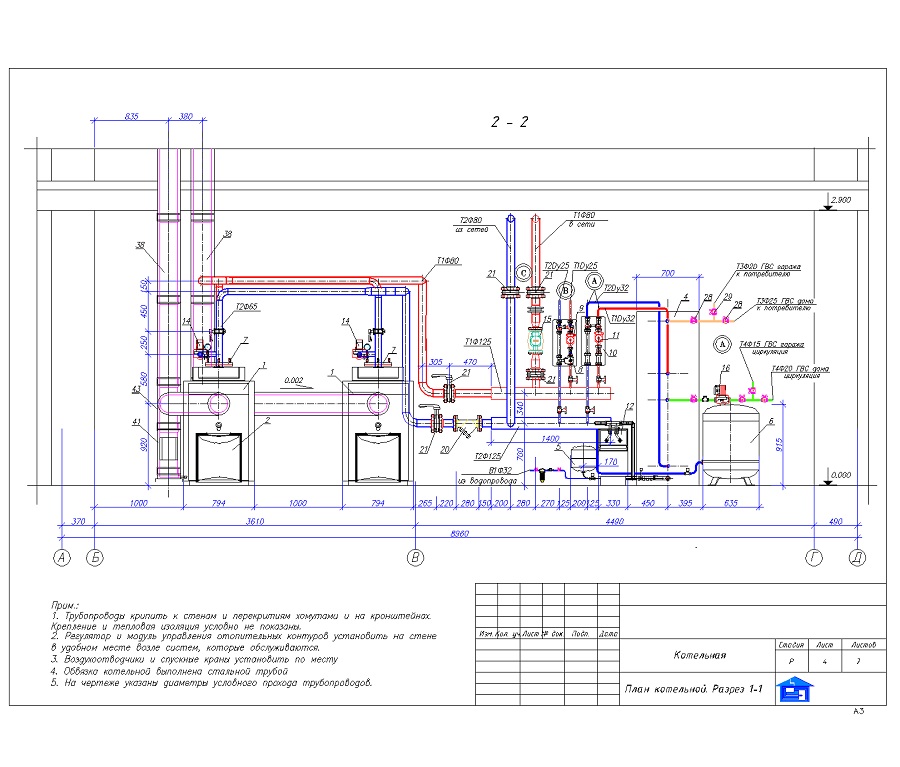
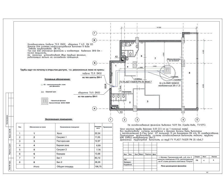
Готовый проект систем отопления, кондиционирования, вентиляции включает в себя:
  • Техническое задание
  • Пояснительная записка
  • Схема расположения основного оборудования
  • Схема размещения прочих элементов
  • Спецификация оборудования
  • Основные технические решения:
    • расход тепла и установочная электрическая мощность оборудования;
    • характеристики системы (габариты, энергопотребление);
    • таблица расчётов воздухообмена в помещениях;
    • расчёт основного оборудования;

Как мы работаем

Звонок
или заявка
Выезд
инженера
Составление
технического задания
Разработка проектной
документации
Подбор
оборудования
Согласование
проекта
Для расчета стоимости и офрмления заказа на установку кондиционера позвоните нам по телефону или отправьте заявку на электронную почту или в WhatsApp.
Примеры наших работ
Проектирование ОВиК в Санкт-Петербурге

Специалисты компании Технологии Климата разрабатывают проектную документацию для следующих типов объектов:

  • Вентиляция жилых помещений
  • Вентиляция офисных помещений
  • Вентиляция производственных помещений
  • Вентиляция кафе и ресторанов
  • Вентиляция складских помещений
  • Кондиционирование складских помещений
  • Кондиционирование жилых помещений
  • Кондиционирование офисных помещений
  • Кондиционирование торговых помещений
  • Кондиционирование кафе и ресторанов
  • Системы отопления жилых помещений
  • Системы отопления офисных помещений
  • Системы отопления складских помещений
  • Системы отопления торговых помещений
  • Системы отопления кафе и ресторанов